2 The Engine House Cottages (EG09)

Mid Terraced House For Sale in Midhurst

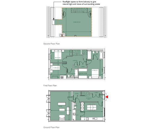
3 Bedrooms 1,857 Sq Ft (NSA) 1,870 Sq Ft (GIA)

A beautiful three-bedroom mid terrace home, offering a private terrace and garden with views over the Estate woodland.

The premium kitchen offers plenty of space for cooking, dining and entertaining, and features a premium handleless design with Silestone worktops and Siemens appliances. A convenient utility room is connected to the kitchen.

The bright and airy living room features two sets of double doors opening onto the private terrace and garden, and this space also offers the chance to cosy up in front of a log burner – creating the perfect rural retreat.

There are three well-proportioned bedrooms on the first floor, all featuring 100% wool carpets. The principal bedroom is incredibly luxurious, with a dedicated dressing room and elegant en suite with inviting bath and separate shower. The en suite, upstairs bathroom and downstairs WC are all fitted with sanitaryware from Laufen Pro and brassware from Vado, as well as porcelain and ceramic tiles to the floors and walls.

On the second floor, this home provides an impressive additional space, which could be used as a playroom or home office – with a high speed internet connection at King Edward VII Estate, working from home is easy.

This beautiful South Downs home is fitted with ample storage space and is sold with two allocated parking spaces. Plus, residents will also benefit from access to the Estate’s 165 acres of private gardens, woodland and parkland, and an array of on-site facilities, including swimming pool, gym and concierge.

Property Features

Three bedroom, newly built property surrounded by 165 acres of private parkland
Bright living room with two sets of double doors opening onto the private terrace and garden
Elegant kitchen appointed with Siemens appliances
Spacious principal bedroom featuring a separate dressing area with fitted wardrobes and a stylish en suite
Two further generous bedrooms with premium 100% wool carpets and a central family bathroom
A home office or playroom on the second floor and an essential utility room on the ground floor
Two allocated parking spaces and access to a wide array of on-site facilities

Development Features

Access to 165 acre site

Swimming Pool & Steam Room

Gym

Concierge Service

High Speed Internet

Dog Friendly

Contact Us

Call 01730 817979

Similar Homes at King Edward VII Estate

View all properties

Buying with Us

Buying a new house can be a daunting prospect but our simple guide and friendly Sales Team will help you through the purchasing process.

Step by step guide

Assisted Move

The Assisted Move Scheme has been created to help you sell your existing property, in order that you can proceed with the purchase of your new City & Country home.

FIND OUT MORE