3 The Engine House Cottages (EG10)

End of Terrace House Sold in Midhurst

3 Bedrooms 1,871 Sq Ft (NSA) 2,153 Sq Ft (GIA)

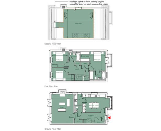
This impressive three bedroom, end of terrace new build property boasts a fabulous living room which is flooded with light thanks to two sets of double doors, which open onto the private terrace and garden with views of the Estate’s woodland. This room also offers the chance to cosy up in front of a log burner as it’s fitted with a bespoke timber fireplace surround – the real country idyll.

The kitchen is generous in size, and offers a fantastic space for cooking, dining and entertaining alike – the beautiful bay window in this room, really invites the outside in and creates a characterful space. The kitchen is fitted with a premium specification – handleless design, grey muted tones, Silestone worktops and integrated Siemens appliances. Furthermore, there is an essential utility room, accessed from the kitchen and directly from the outside – you can brush of the South Downs soil after your wanderings around the private 165-acre Estate with your four-legged friend.

There are three spacious double bedrooms on the first floor, all featuring 100% wool carpets. The sumptuous master bedroom boasts a fabulous balcony looking onto the Estate’s landscaping, a dedicated dressing room and elegant en suite with luxurious bath and separate shower. The en suite, upstairs bathroom and downstairs WC are all fitted with sanitaryware from Laufen Pro and brassware from Vado, as well as a selection of porcelain and ceramic tiles to the floors and walls.

On the second floor, this home provides an impressive additional space, which could be used as a playroom, or large home office.

This fantastic property offers all the modern conveniences of a new home, without compromising on character and style, there is ample storage space, high speed internet, smart technology and two allocated parking spaces. Plus, residents will also benefit from access to the Estate’s 165 acres of private gardens, woodland and parkland, and an array of on-site facilities, including swimming pool, gym and concierge. This home is being sold off plan with an anticipated Summer 2022 completion.

Property Features

Three bedroom, end of terrace newly built property
Bright and airy living room with two sets of double doors opening onto the private terrace and garden
Beautiful kitchen with a bay window that floods the space with light and creates the perfect space for entertaining
Spacious master bedroom featuring a separate dressing area with fitted wardrobes and an elegant en suite
Two further generous bedrooms with premium 100% wool carpets and a centrally positioned family bathroom
A home office or playroom on the second floor and an essential utility room on the ground floor
Two allocated parking spaces and access to a wide array of on-site facilities

Development Features

Access to 165 acre site

Swimming Pool & Steam Room

Gym

Concierge Service

High Speed Internet

Dog Friendly

Contact Us

Call 01730 817979

Similar Homes at King Edward VII Estate

View all properties

Buying with Us

Buying a new house can be a daunting prospect but our simple guide and friendly Sales Team will help you through the purchasing process.

Step by step guide

Assisted Move

The Assisted Move Scheme has been created to help you sell your existing property, in order that you can proceed with the purchase of your new City & Country home.

FIND OUT MORE