CW01
Central West
The 1840, St George's Gardens
535,000
1
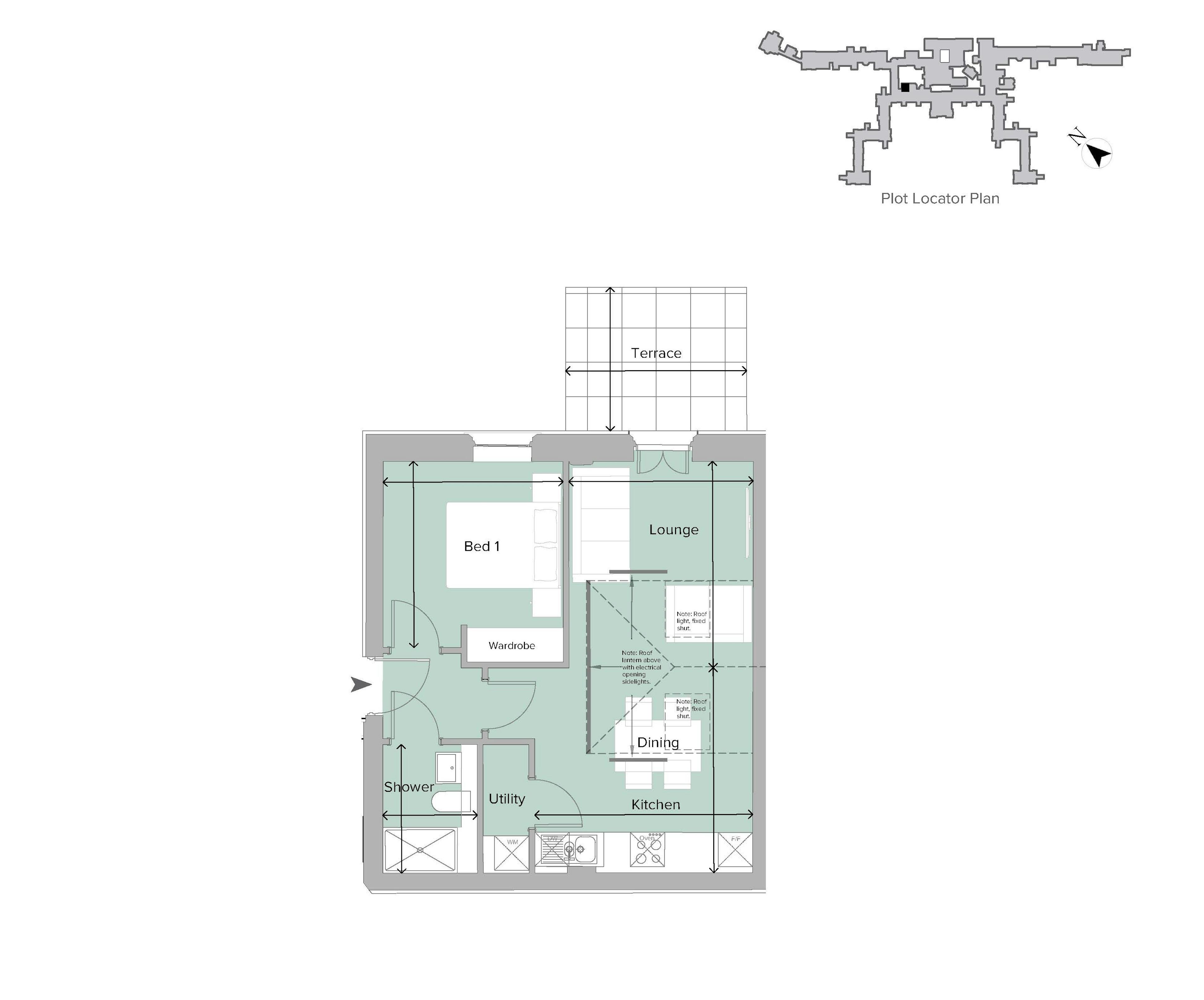
501 SQ FT
Ground Floor
NEW RELEASE
Ground floor apartment with a roof light that fills the interior with natural light and a terrace looking across the courtyard.
Welcome to
CW01
Central West
Apartment CW01 is a charming one-bedroom home located on the ground floor. The heart of the home is a bright open-plan kitchen, dining, and lounge area, enhanced by a stunning roof light that fills the space with natural daylight. The modern kitchen features integrated appliances and ample storage, making it both stylish and practical. The bedroom offers generous proportions and fitted wardrobe space, accompanied by a high-specification bathroom with shower. A dedicated utility area ensures everyday convenience. One of the standout features of CW01 is its private terrace overlooking the West Courtyard, providing the perfect spot for morning coffee or evening relaxation in a beautifully landscaped setting.
Priced At £535,000
Save to favourites
Plot Features

Roof light feature offering an abundance of natural daylight

Terrace overlooking the West Courtyard
Fitted wardrobes
Integrated Siemens appliances

FIND YOUR PERFECT MATCH
Join us on Saturday 14th Feburary from 10am until 4pm for our Matchmaker Event. Discover our available homes whilst enjoying locally sourced wine tasting. Appointment is required.
Property Features
Designed for You in Mind
Interior Highlights
- Stylish kitchen with integrated Siemens appliances including a wine cooler
- Villeroy & Boch sanitaryware
- Underfloor heating to bathrooms, kitchen, living & dining areas
- White stone worktops with matching full-height stone splashback
- Full height tiling to bathroom & en-suite
- Fitted wardrobes to dressing area
- Utility space for your organisational needs
Exterior Highlights
- Views across the private landscaped gardens
- Set within a Grade II listed building
- 8-Acre Private Residents’ Landscaped Gardens
- Original Period Features
- Luxurious communal areas
- Pet friendly apartments
- Onsite concierge service
Floor Plans
Download Floor Plans
Development Video
Let Us Show You Around

Explore This Home
Where Lifestyle Meets Location
Everything you love about London, just without the compromise.
Boasting a prime location between Tooting, Balham, Earlsfield and Wandsworth Common, you will be perfectly placed to enjoy the very best of several sought-after neighbourhoods, 32-acres of green space and great connections to the city and beyond.

32-Acres of Green Space
As a resident, you’ll enjoy exclusive amenities from private outdoor spaces, access to landscaped gardens and a newly developed park.
Get in touch
BOOK YOUR APPOINTMENT
Looking for your perfect home? Our team is here to help you every step of the way.
February 2026
Contact Us
GET IN TOUCH TODAY
Monday - Sunday 10am until 5pm
The 1840, St George’s Gardens Marketing Suite
Diana House,
Email us on






