The Austin I (Plot 186)

Newly released Austin I with three-storey living

Enquire about this property

£475,000

4 Bedrooms Semi-Detached 1,278 Sq Ft (NSA) 1,339 Sq Ft (GIA)

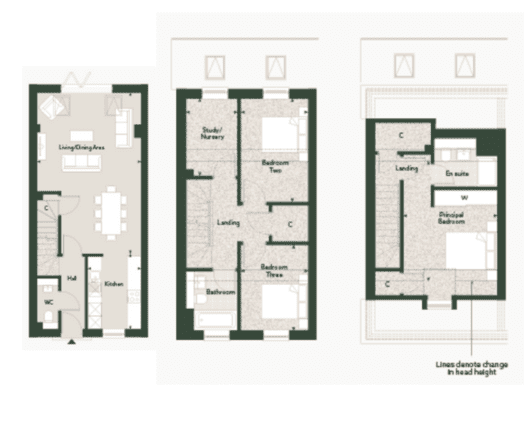
The four-bedroom semi-detached Austin I is a home designed for modern living, offering a stylish yet practical layout that suits a variety of lifestyles.

The ground floor is thoughtfully designed with open-plan kitchen/living/dining area. The living area benefits from bi-fold doors that seamlessly open onto the south-facing rear garden, creating an effortless connection between indoor and outdoor spaces. The modern kitchen is well-equipped with silestone worktops, a shaker-style kitchen, a wine cooler integrated appliances, and ample storage, making it both functional and elegant.

Upstairs, the Austin I offers two generously sized double bedrooms, providing ample space for family, guests, or flexible living arrangements. The third bedroom is ideal for a study/nursery. The family bathroom is finished to a high specification, featuring premium tiling, a mirrored vanity cabinet, a heated towel radiator, and a handheld shower head over the bath.

The second floor hosts the main bedroom, with fitted wardrobes, a stylish en suite, and a dedicated area ideal for a home study, offering the perfect balance of comfort and convenience.

Outside, the home is completed with turfed front and rear gardens, Raj Indian sandstone paving slabs for pathways and patios, an outdoor garden tap, and a SimpliSafe doorbell and intruder alarm, ensuring both security and practicality.

OVERVIEW

  • Open plan kitchen/dining/living area with bi-folds into the garden
  • South-facing garden
  • Three-storey living
  • Main bedroom with fitted wardrobe and en-suite
  • Kitchen featuring integrated appliances
  • Single detached garage
  • Two parking spaces

Property Features

Integrated appliances
Large bi-fold doors to the garden on ground floor
Pathways and patios laid with Raj Indian sandstone paving slabs
Turf to front and rear garden
Amtico flooring laid to hallways, wc, kitchen and open plan living/kitchen/dining area
Carpets in taupe colour to stairs, bedrooms, separate dining rooms/study and separate living room
Porcelain floor tiles to all bathrooms and ensuites
Half height tiling to bathrooms and ensuite and full height tiling to shower area
Shaker-style kitchen
Mirrored vanity cabinet to bathrooms and ensuite with a stone shelf and mood lighting
Underfloor heating to ground floor
SimpliSafe doorbell and intruder alarm
Perfectly placed in St Osyth

Contact Us

Call 01255 444 890

Request a Private Viewing

Use the calendar below to request an appointment at Priory Fields

Submit

Helping You Buy – Making Your Dream Home a Reality

Buying a new home is an exciting journey, and we’re here to make it effortless. From your first enquiry to the moment you step through the door, our expert team will guide you every step of the way, turning what feels daunting into a seamless and enjoyable experience.

Let’s make your move happen!

Find out more

A Highly Acclaimed Housebuilder since 1962

Live in a beautifully crafted home, built by an award-winning developer. City & Country have been named Whathouse? Housebuilder of the Year 2024.

We have consistently achieved numerous accolades over the years and have been recognised as a leading housebuilder in not only the restorative category but recently, new build homes as well.

Our awards